OIRO £1,699 pcm Under Offer

NO SHARERS
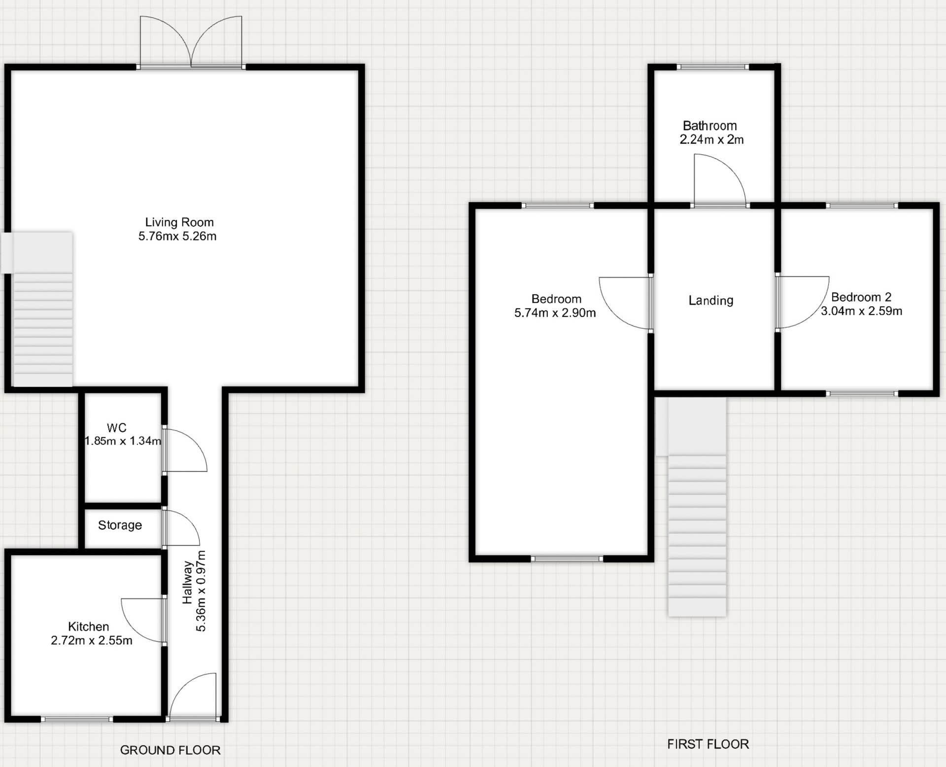
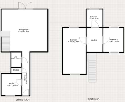
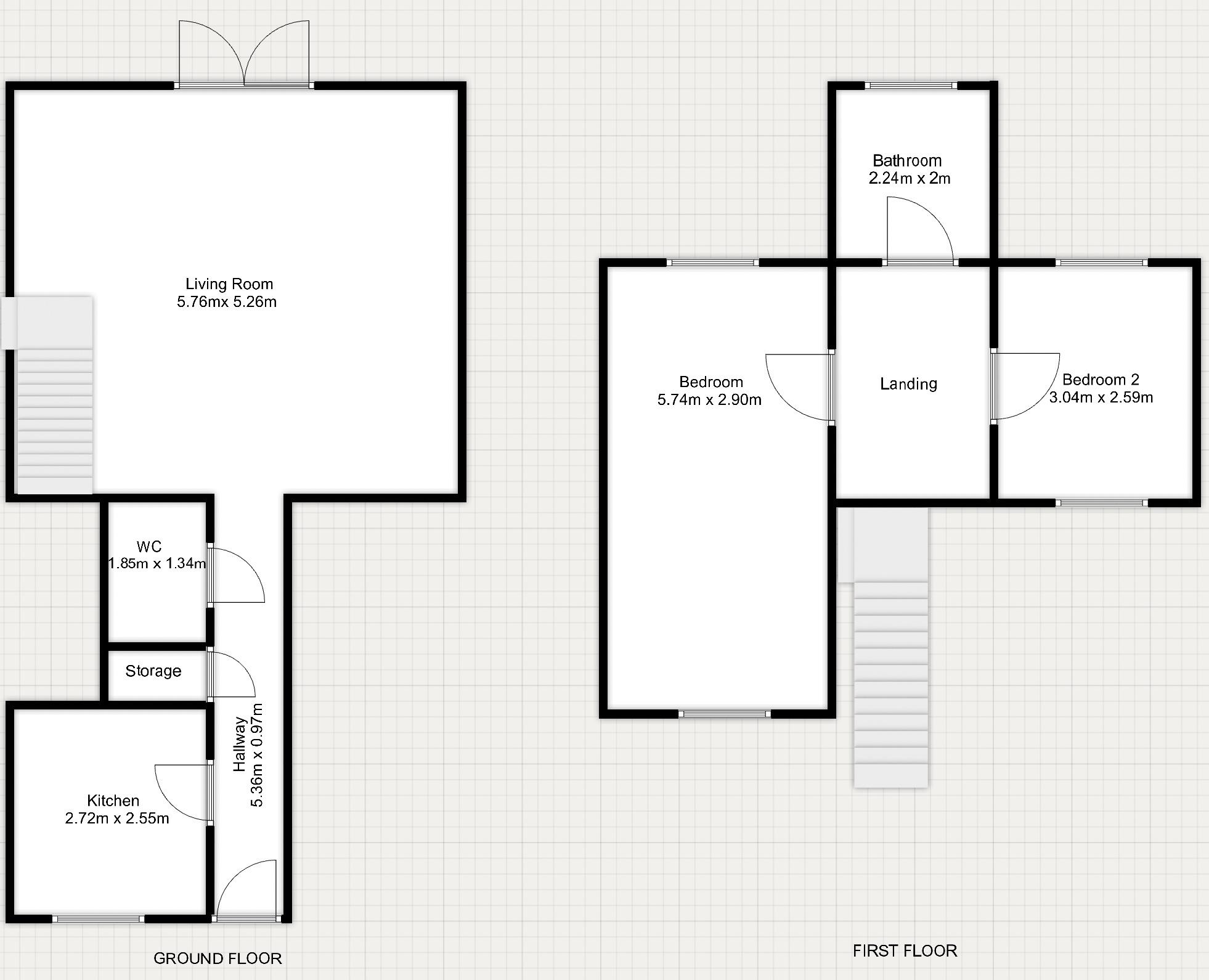
Redwood Estates are pleased to offer this end of terrace HOUSE, comprising, entrance hall, downstairs W.C Kitchen with white units, lounge/diner, 2 double bedrooms and family bathroom, large garden to the rear.
Close to local amenities and schools and Thamesmead Shopping Centre.
AVAILABLE EARLY DECEMBER



Deposit: £1,960.00

Minimum Tenancy : 12 months

Council Tax
Royal Borough Of Greenwich, Band C

Notice
All photographs are provided for guidance only.

Floor Plan
EER Chart

The Energy-Efficiency Rating is a measure of a home's overall efficiency. The higher the rating, the more energy-efficient the home is, and the lower the fuel bills are likely to be.

Utility Supply Type
Electric Mains Supply
Gas Mains Supply
Water Mains Supply
Sewerage Mains Supply
Broadband Cable
Telephone Landline

Other Items Description
Heating Gas Central Heating
Garden/Outside Space Yes
Parking No
Garage No

Broadband Coverage Highest Available Download Speed Highest Available Upload Speed
Standard 8 Mbps 0.9 Mbps
Superfast 80 Mbps 20 Mbps
Ultrafast 1800 Mbps 220 Mbps

Mobile Coverage Indoor Voice Indoor Data Outdoor Voice Outdoor Data
EE Enhanced Enhanced Enhanced Enhanced
Three Enhanced Enhanced Enhanced Enhanced
O2 Likely Likely Enhanced Enhanced
Vodafone Likely Likely Enhanced Enhanced

Broadband and Mobile coverage information supplied by Ofcom.


marker icon